SANTI DIMENTICATI, MA IMPORTANTI PER LA STORIA DEL MOLISE
Franco Valente
S. Pasquale I, papa.
Papa Pasquale per Santa Prassede si ispirò a S.Vincenzo al Volturno Se vogliamo sapere come sia stata precisamente la basilica di S. Vincenzo Maggiore, dobbiamo andare a Roma e visitare S. Prassede.
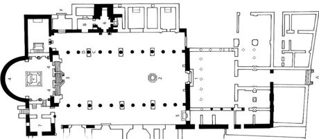
Santa Prassede nel Molise non viene venerata, ma a Roma la Basilica che le è dedicata è nella sostanza la fotocopia di S. Vincenzo al Volturno (lunghezza totale, larghezza, 24 colonne e cripta semianulare).
Santa Prassede, sorella di Santa Pudenziana anch’essa martire romana, era nell’elenco dei santi venerati almeno dal VII secolo nel cimitero di Priscilla sulla Salaria.
A noi interessa particolarmente perché in suo onore Pasquale I realizzò una delle basiliche più belle di Roma edificandola su ciò che, secondo la tradizione, rimaneva di una chiesa fatta costruire dalla stessa Prassede. Il luogo si trova a pochi metri da S. Maria Maggiore.
Nel Chronicon Vulturnense il curatore della storia di S. Vincenzo ebbe modo di riassumere alcuni episodi della vita dell’abate Josue (792-817) (Vita vel obitus Domni Iosue venerandi abbatis).
Tra questi quello relativo alla costruzione della grandiosa basilica che alla fine dei lavori misurerà complessivamente oltre 100 metri di lunghezza ovvero qualche metro in più della chiesa romana.
Il cronista colloca l’episodio nell’anno 808, ma presumibilmente il completamento della chiesa volturnense non avvenne prima dell’817, che nello stesso tempo è l’anno di morte dell’abate Josue e l’anno in cui Pasquale I, che risulta essere presente alla cerimonia di consacrazione, divenne papa.
Papa Pasquale per Santa Prassede si ispirò a S.Vincenzo al Volturno
Santa Prassede nel Molise non viene venerata, ma a Roma la Basilica che le è dedicata è nella sostanza la fotocopia di S. Vincenzo al Volturno (lunghezza totale, larghezza, 24 colonne e cripta semianulare).
S. Prassede a Roma
Santa Prassede, sorella di Santa Pudenziana anch’essa martire romana, era nell’elenco dei santi venerati almeno dal VII secolo nel cimitero di Priscilla sulla Salaria.

S. Prassede nella ricostruzione assonometrica di Spencer Corbett
A noi interessa particolarmente perché in suo onore Pasquale I realizzò una delle basiliche più belle di Roma edificandola su ciò che, secondo la tradizione, rimaneva di una chiesa fatta costruire dalla stessa Prassede. Il luogo si trova a pochi metri da S. Maria Maggiore.
Il protiro di S. Prassede a Roma
Nel Chronicon Vulturnense il curatore della storia di S. Vincenzo ebbe modo di riassumere alcuni episodi della vita dell’abate Josue (792-817) (Vita vel obitus Domni Iosue venerandi abbatis).
Tra questi quello relativo alla costruzione della grandiosa basilica che alla fine dei lavori misurerà complessivamente oltre 100 metri di lunghezza ovvero qualche metro in più della chiesa romana.

L’abate Josue dona la nuova basilica a S. Vincenzo martire di Saragozza (Chronicon Vulturnense)
Il cronista colloca l’episodio nell’anno 808, ma presumibilmente il completamento della chiesa volturnense non avvenne prima dell’817, che nello stesso tempo è l’anno di morte dell’abate Josue e l’anno in cui Pasquale I, che risulta essere presente alla cerimonia di consacrazione, divenne papa.
Pasquale I
Questa la traduzione letterale del documento del Chronicon Vulturnense:
(….)
E poiché l’edificio dove si riunivano in preghiera sembrava loro piccolo per tanti padri congregati in un sol luogo, aiutati dalla pietà di Ludovico, sarebbe stato edificato nello stesso monastero in onore del sommo Dio e con il nome del suo prezioso martire Vincenzo, un edificio adatto ad una comunità così grande.
L’Augusto, annuendo spontaneamente, concesse ciò che era stato richiesto, e attribuì anche quanto sembrava loro utile o necessario a questo scopo.
Dunque la virtù del Signore convertì il cuore del sovrano all’amorevole compimento di quest’opera, sostenendo la devozione dei fratelli e le mani degli operai, così che con mirabile lavoro e imponenti colonne in non molto tempo fu innalzata la chiesa sulla cui facciata così si leggeva in lettere d’oro:
Qualunque cosa tu veda, ospite, innalzarsi verso l’alto o verso il basso,
Giosue, uomo del Signore, costruì insieme ai suoi fratelli.
Infatti la chiesa misurava trentasei passi in lunghezza e sedici passi, compresi i portici, in larghezza, (alta fino alle travi dodici passi) e aveva anche solidissimi ambienti in corrispondenza del sacro edificio.
Completato, dunque, l’edificio, l’Augusto fu invitato alla solenne consacrazione della chiesa, e vi si recò lieto e felice con la sua regina, sorella germana dello stesso felicissimo abate Giosue, e con una gran moltitudine di persone di ogni condizione e sesso. Era presente anche il papa apostolico Pasquale I, con il sacro collegio di vescovi, di cardinali, di vari chierici ed una innumerevole moltitudine di fedeli accorsi da ogni parte, i quali con grandissima esultanza e letizia consacrarono la predetta basilica, alla quale lo stesso giorno il re e la regina recarono doni magnifici. La regina ordinò che dalle singole colonne, che erano in tutto trentadue, pendessero drappi, uno per ciascuna colonna.
Era l’anno 808 dall’incarnazione del Signore, prima indizione.
Certo per noi che la vediamo ora, e per coloro che hanno potuto vederla a quei tempi, tanta é la meraviglia per la grandezza e la bellezza di quella chiesa edificata da queste parti

S. Prassede da http://www.sacred-destinations.com/italy/rome-santa-prassede-plan.htm

La basilica di S. Vincenzo
Gli scavi archeologici hanno rivelato che le colonne interne alla chiesa volturnense erano in realtà 24, ma hanno comunque confermato le dimensioni straordinarie della basilica.

La cripta semianulare di S. Vincenzo all’epoca della scoperta
La particolare similitudine delle cripte semianulari in ambedue le chiese e la circostanza che S. Prassede sia stata sicuramente costruita dopo S. Vincenzo conferma che la basilica romana abbia avuto come prototipo diretto proprio la chiesa di Josue.
La cripta semianulare di S. Prassede dopo le trasformazioni rinascimentali
fonte


invio in corso...



